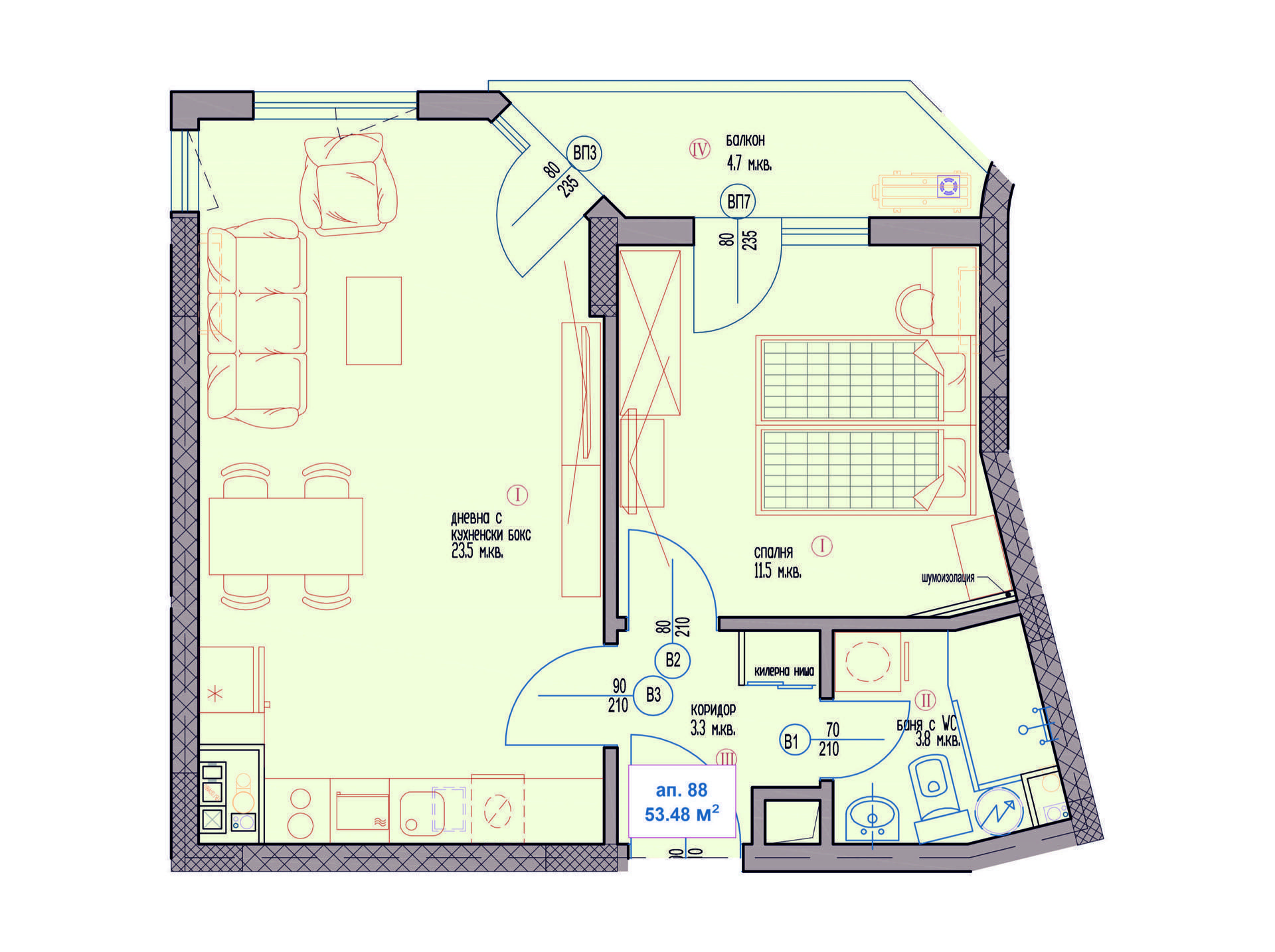
А88

61.31 m2 Обща площ
53.48 m2 Чиста площ
Продаден Статус
Изток Изглед

Схема на Апартамента

Увеличи Briz_Yug_Apartment_A88

Двустаен Апартамент

Апартамент - Дневна с кухненски бокс, спалня, баня с тоалетна, килерна ниша, коридор, балкон
Изложение Изток
Етаж 16
Апартамент А88
Вход А
Сграда Бриз Хоумс

Разположение на Етаж 16 - Вход A

Бриз Хоумс
Варна, бул. В. Левски №70
https://spedstroy.bg
тел.: +359 896 661 619
Спедстрой ЕООД
ул. Ана Феликсова № 12
https://spedstroy.bg
office@spedstroy.bg
61.31 m2Обща площ
53.48 m2Чиста площ
№ А88
ПродаденСтатус
ИзтокИзглед

Двустаен Апартамент

Апартамент - Дневна с кухненски бокс, спалня, баня с тоалетна, килерна ниша, коридор, балкон

Изложение Изток
Етаж 16
Апартамент А88
Вход А
Уеб сайт и SEO от

Искаш ли да ти звъннем?

Ще ти звъннем и ще отговорим на въпросите ти безплатно, още днес. Или се обади и попитай на +359 896 661 619